Address 304 North Cardinal St. Dorchester Center, MA 02124
Work Hours Monday to Friday: 7AM - 7PM Weekend: 10AM - 5PM
Infraestructura
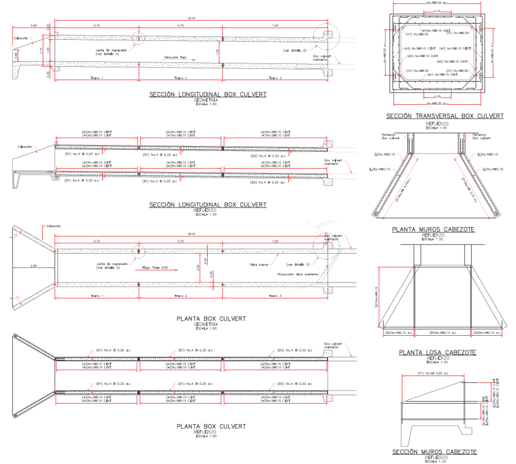
Box culvert intercambio vial La Seca
Revisión de la capacidad estructural de la cobertura con doble celda de 4,00 m x 4,00 m, para el cuál se concluye que el refuerzo dispuesto es adecuado. Adicionalmente se presenta el rediseño de la cobertura sencilla de 2,00 m x 1,50 m, la cuál, durante la evaluación de capacidad, se concluyó que debía rediseñarse.
Normas aplicables
Código colombiano de diseño de puentes CCP-14.
Reglamento colombiano de construcción sismo resistente NSR-10.
Muro de contención intercambio vial La Seca
Diseño estructural del muro de contención en margen izquierda de la quebrada la montaña, ubicado en la vereda La verde, corregimiento de San Antonio de Prado, municipio de Medellín, en el marco de la atención a una situación de urgencia manifiesta declarada por el municipio de Medellín. La geometría del muro de contención se presenta a continuación.
Normas aplicables
Código colombiano de diseño de puentes CCP-14.
💬¿Necesitas ayuda? Chatea con nosotros
👋 ¡Hola! Gracias por contactar a FORJA DESIGN SOLUTIONS SAS. ¿Quieres cotizar, revisar planos o resolver una duda técnica? Te leemos.