Address 304 North Cardinal St. Dorchester Center, MA 02124
Work Hours Monday to Friday: 7AM - 7PM Weekend: 10AM - 5PM
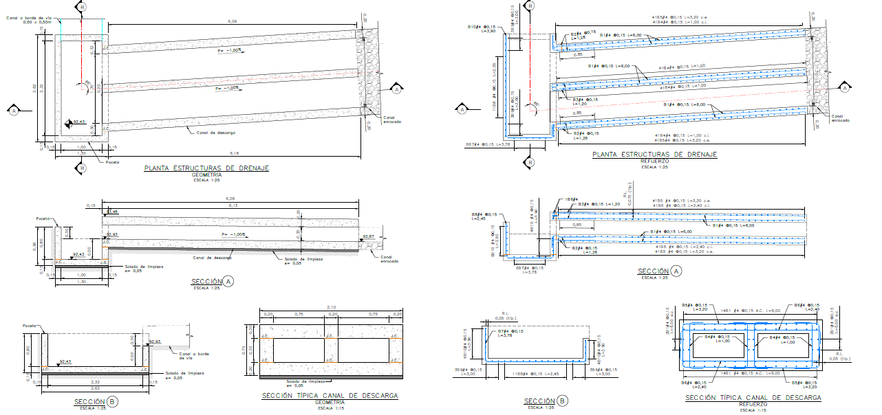
Infraestructura
Obras hidráulicas - El Roble
El proyecto se encuentra ubicado en la zona rural del municipio de Corozal, departamento de Sucre, georreferenciado con las siguientes coordenadas latitud 9° 8’37.14″N, longitud 75° 8’51.67″O. el elemento será construido cómo parte de un paso de agua en la vía, por lo tanto, este se diseña para atender las solicitaciones generadas por el camión y el tándem de diseño del CCP-14, asegurando que el elemento tenga capacidad estructural. La lámina de agua que actúa en la alcantarilla es de 0.05 m, por lo que las fuerzas generadas por esta se consideran despreciables a efectos del diseño estructural del elemento, siendo la condición gobernante el paso del vehículo.
Normas aplicables
Norma Colombiana de Diseño de Puentes CCP-14 adoptado mediante Resolución No. 0000108, del 26 de enero de 2015, emanada del Ministerio de Transporte.
💬¿Necesitas ayuda? Chatea con nosotros
👋 ¡Hola! Gracias por contactar a FORJA DESIGN SOLUTIONS SAS. ¿Quieres cotizar, revisar planos o resolver una duda técnica? Te leemos.