Address 304 North Cardinal St. Dorchester Center, MA 02124
Work Hours Monday to Friday: 7AM - 7PM Weekend: 10AM - 5PM
Aguas y saneamiento
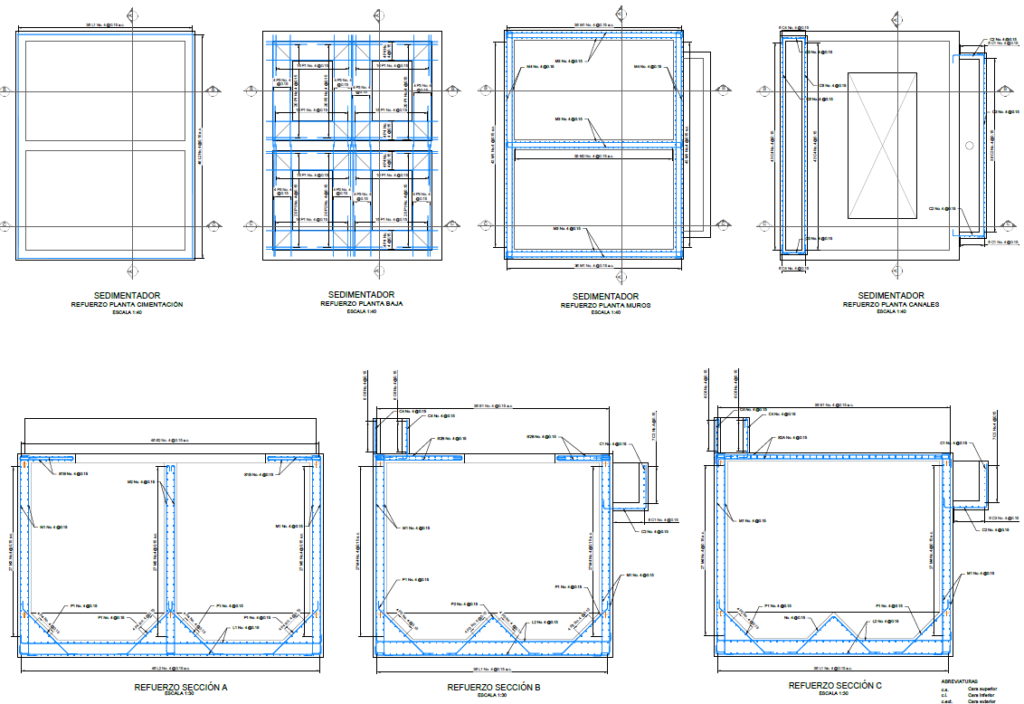
PTAR San Carlos
El presente proyecto corresponde al diseño estructural de las obras proyectadas para la ampliación de la Planta de Tratamiento de Aguas Residuales (PTAR) del municipio de San Carlos, Antioquia. El informe contempla el análisis y diseño de las estructuras en concreto reforzado que conforman el sistema de tratamiento, incluyendo tanques y obras complementarias, con el fin de garantizar la estabilidad, resistencia y adecuado desempeño estructural frente a las acciones gravitacionales, hidráulicas, de empuje de suelos y sísmicas, de acuerdo con la normativa vigente.
Normas aplicables
Reglamento Colombiano de Construcción Sismo Resistente, NSR-10.
Recomendaciones para requisitos sísmicos de estructuras diferentes a edificaciones (AIS-180-13).
Minimum design loads and associated criteria for buildings and other structures (ASCE 7-05 y ASCE 7-22).
Code Requirements for Environmental Engineering Concrete Structures (ACI 350).
💬¿Necesitas ayuda? Chatea con nosotros
👋 ¡Hola! Gracias por contactar a FORJA DESIGN SOLUTIONS SAS. ¿Quieres cotizar, revisar planos o resolver una duda técnica? Te leemos.