Address 304 North Cardinal St. Dorchester Center, MA 02124
Work Hours Monday to Friday: 7AM - 7PM Weekend: 10AM - 5PM
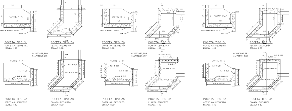
Infraestructura
Punto crítico KM 10 Ruta El pollo
El proyecto de ampliación de la vía La Romelia – El pollo presenta una serie de estructuras necesarias para la estabilidad de las obras, en la presente memoria de cálculo se presentan los procedimiento y métodos llevados a cabo para determinar los diferentes parámetros que permitan dar la capacidad estructural necesaria a las obras de drenaje del Km 10, siguiendo los requisitos estipulados en el Código Colombiano de diseño de puentes (CCP-14).
Normas aplicables
Código colombiano de diseño de puentes CCP-14.
💬¿Necesitas ayuda? Chatea con nosotros
👋 ¡Hola! Gracias por contactar a FORJA DESIGN SOLUTIONS SAS. ¿Quieres cotizar, revisar planos o resolver una duda técnica? Te leemos.