Address 304 North Cardinal St. Dorchester Center, MA 02124
Work Hours Monday to Friday: 7AM - 7PM Weekend: 10AM - 5PM
Infraestructura
Anclaje
Se realiza el análisis y diseño estructural en fase ll de las obras requeridas para la estabilidad y el manejo de aguas del proyecto, en el tramo PR42+632 a PR42+862 de la conexión Antioquia-Chocó.
De acuerdo con la información anterior, se desarrolla el diseño estructural de los elementos de mayor dimensión y su espesores y refuerzo se emplea para el resto de los elementos.
Normas aplicables
Código colombiano de diseño de puentes CCP-14.
Cabezotes
Se realiza el análisis y diseño estructural en fase ll de las obras requeridas para la estabilidad y el manejo de aguas del proyecto, en el tramo PR42+632 a PR42+862 de la conexión Antioquia-Chocó.
De acuerdo con la información anterior, se desarrolla el diseño estructural de los elementos de mayor dimensión y su espesores y refuerzo se emplea para el resto de los elementos.
Normas aplicables
Código colombiano de diseño de puentes CCP-14.
Reglamento colombiano de construcción sismo resistente NSR-10.
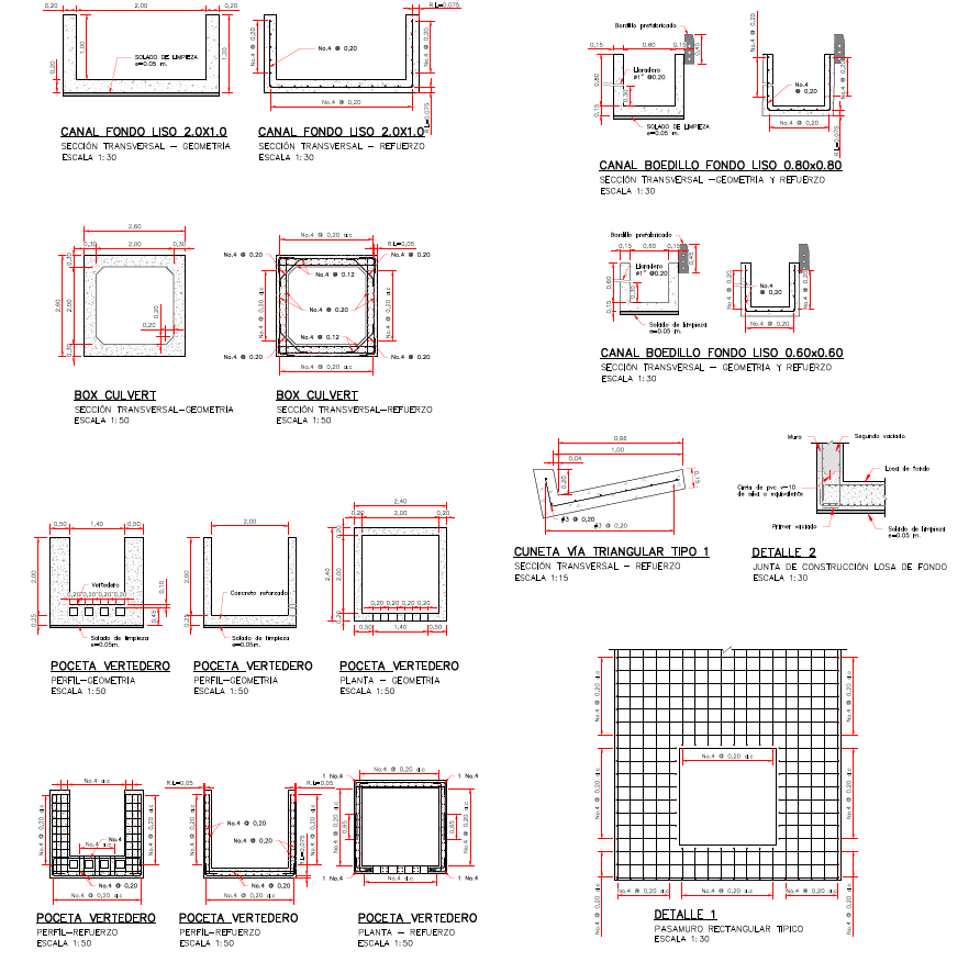
Pocetas
Se realiza el análisis y diseño estructural en fase ll de las obras requeridas para la estabilidad y el manejo de aguas del proyecto, en el tramo PR42+632 a PR42+862 de la conexión Antioquia-Chocó.
De acuerdo con la información anterior, se desarrolla el diseño estructural de los elementos de mayor dimensión y su espesores y refuerzo se emplea para el resto de los elementos.
Normas aplicables
Código colombiano de diseño de puentes CCP-14.
Reglamento colombiano de construcción sismo resistente NSR-10, numeral C.23
Pocetas
Se realiza el análisis y diseño estructural en fase ll de las obras requeridas para la estabilidad y el manejo de aguas del proyecto, en el tramo PR42+632 a PR42+862 de la conexión Antioquia-Chocó.
De acuerdo con la información anterior, se desarrolla el diseño estructural de los elementos de mayor dimensión y su espesores y refuerzo se emplea para el resto de los elementos.
Normas aplicables
Código colombiano de diseño de puentes CCP-14.
Reglamento colombiano de construcción sismo resistente NSR-10, numeral C.23
💬¿Necesitas ayuda? Chatea con nosotros
👋 ¡Hola! Gracias por contactar a FORJA DESIGN SOLUTIONS SAS. ¿Quieres cotizar, revisar planos o resolver una duda técnica? Te leemos.