Address 304 North Cardinal St. Dorchester Center, MA 02124
Work Hours Monday to Friday: 7AM - 7PM Weekend: 10AM - 5PM
Infraestructura
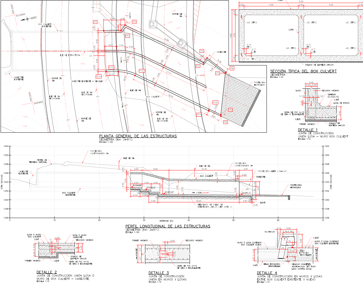
Box Culvert
El proyecto de ampliación de la vía el pollo para la construcción de una segunda calzada que permita ofrecer más capacidad vehicular genera una serie de retos en cuanto a las estructuras ambientales necesarias para su ejecución, en la presente memoria de cálculo se presentan los procedimientos y métodos llevados a cabo para determinar los diferentes parámetros que permitan dar la capacidad estructural necesaria a la estructura de drenaje transversal correspondiente al K3+811.
Normas aplicables
Código colombiano de diseño de puentes CCP-14.
Reglamento colombiano de construcción sismo resistente NSR-10.
Muro de contención 1
El proyecto de ampliación de la vía el pollo para la construcción de una segunda calzada que permita ofrecer más capacidad vehicular genera una serio de retos en cuanto a las estructuras ambientales necesarias para su ejecución, en la presente memoria de cálculo se presentan los procedimiento y métodos llevados a cabo para determinar los diferentes parámetros que permitan dar la capacidad estructural necesaria al muro de contención del K0+465 A K0+600.
Normas aplicables
Código colombiano de diseño de puentes CCP-14.
Muro de contención 2. Anclajes
El proyecto de ampliación de la vía el pollo para la construcción de una segunda calzada que permita ofrecer más capacidad vehicular genera una serio de retos en cuanto a las estructuras ambientales necesarias para su ejecución, en la presente memoria de cálculo se presentan los procedimiento y métodos llevados a cabo para determinar los diferentes parámetros que permitan dar la capacidad estructural necesaria al muro de contención.
Normas aplicables
Código colombiano de diseño de puentes CCP-14.
Reglamento colombiano de construcción sismo resistente NSR-10.
💬¿Necesitas ayuda? Chatea con nosotros
👋 ¡Hola! Gracias por contactar a FORJA DESIGN SOLUTIONS SAS. ¿Quieres cotizar, revisar planos o resolver una duda técnica? Te leemos.